Авторизация
По номеру телефона
По E-mail
Войти по коду из SMS
Войти по паролю
Выслать СМС с кодом
Регистрация
Подтвердить
Выслать повторно
Запросить код повторно можно через
Восстановление пароля

Выберите, какую информацию использовать для изменения пароля:

Контрольная строка для смены пароля, а также ваши регистрационные данные, будут высланы вам по email.
Авторизация

Напольный газовый котел отопления Protherm Медведь 20 TLO

  • Производитель
  • Гарантия
    2 года
  • Артикул производителя
    20TLOR15
  • Страна-производитель
    Словакия
  • Тепловая мощность
    18 кВт
  • Тип камеры сгорания
    Открытая
  • КПД
    90 %
  • Вид топлива
    Газ
  • Количество контуров
    Одноконтурный

Модификации:

Тепловая мощность:
Цена:
147 084 ₽ / за штуку
- +
Скидка за оптовую покупку

  • Характеристики

    Мощность
    • Тепловая мощность 18 кВт
    • КПД 90 %
    Дымоудаление
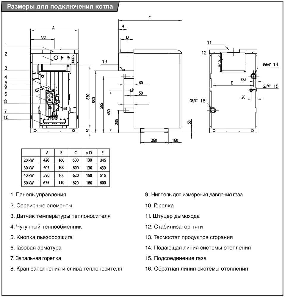
    • Диаметр дымохода 130 мм
    Расход топлива
    • Расход топлива 2,4 м3/час
    Подключение и монтаж
    • Тип установки Напольный
    Конструктивные особенности
    • Тип камеры сгорания Открытая
    Технические характеристики
    • Вид топлива Газ
    • Количество контуров Одноконтурный
    Габариты и вес
    • Высота 880 мм
    • Ширина 420 мм
    • Глубина 600 мм
    • Вес 90 кг
    Основные характеристики
    • Тип теплообменника чугунный
    • Материал теплообменника чугун
    • Тип котла Атмосферный
    • Тип розжига Пьезорозжиг
    • Максимальная площадь отопления 180 метры Кв
    • Энергонезависимый Да
    • Количество секций в теплообменике 3
    • Топливо Магистральный газ - пропан/бутан
  • Описание товара

    Напольные чугунные газовые котлы мощностью от 18 до 45 кВт для отопления и приготовления горячей воды во внешнем бойлере. Предназначены для систем с естественной циркуляцией теплоносителя.

    Электронезависимы, не требуют подключения к электрической сети ~220В. Предназначены для установки в жилых домах, дачных домиках и производственных помещениях.

    Розжиг котла осуществляется при помощи пьезоэлемента. 1-но ступенчатое регулирование мощности котла.

    Вся информация о товарах взята из открытых источников и не является публичной офертой.

    Изображения и технические характеристики могут отличаться от реальных.

    Проверяйте технические данные в момент приема и оплаты товара.

  • Как оформить заказ

    По телефону

    Позвоните нашим менеджерам по номеру +7(495)777-67-22 . Они помогут подобрать оборудование, ответят на вопросы и оформят заказ.

    Быстрый заказ

    Для одного товара нажмите «Купить» рядом с ценой, введите номер телефона в появившемся окне и снова нажмите «Купить». Мы перезвоним для уточнения деталей.

    Через корзину

    Добавьте нужные товары в корзину, нажав «В корзину». Затем перейдите в корзину и нажмите «Оформить заказ». Укажите данные и подтвердите заказ. Мы свяжемся с вами для уточнений.

    По электронной почте:

    Отправьте список товаров, спецификацию или планировку на info@tavago.ru. Мы подготовим заказ и свяжемся с вами

    Как оплатить заказ

    Наличными курьеру при получении заказа или в офисе

    Картой при получении или в офисе. Мы принимаем карты Visa, Mastercard, Мир

    Безналичный расчет для юридических лиц

    Как получить заказ

    Доставка по Москве и Московской области

    Доставка в пределах МКАД - от 500 рублей, за МКАД - 40 рублей/километр. Подробнее

    Доставка по России

    Отправляем в любую точку России через выбранную транспортную компанию. Стоимость зависит от региона, габаритов и веса товара. Подробную информацию вы всегда можете уточнить у наших менеджеров. Подробнее

    Самовывоз

    Наш офис находится в бизнес-парке Румянцево на Киевском шоссе. Всего 500 метров от МКАД, бесплатная парковка, шаговая доступность метро. Оплатить товар можно в офисе, а забрать на складе. Перед приездом позвоните нам , для уточнения наличия товара и заказа пропуска в бизнес-парк.

Вы недавно смотрели

Монтаж и пусконаладка оборудования

Подробнее

Бесплатная консультация специалистов

Заказать звонок

Гарантийное и постгарантийное обслуживание

Подробней

181 день
на возврат товара

Подробней